ÇéÐλ·±£¹¤³Ì½â¾ö¼Æ»®

BIMÓ¦ÓÃ1£º¹¤³Ìѡַ
Civil3DºÍInfraworksÈí¼þ¹¤¾ßµÄ×éºÏ£¬£¬£¬£¬£¬£¬£¬Äܹ»½«¶àÀàÊý¾Ýµ¼Èë¾ÙÐÐÕûºÏÆÊÎö£¬£¬£¬£¬£¬£¬£¬²¢¿ìËٵĽ¨ÉèÔ°µØÄ£×Ó¡¢ÍýÏëõè¾¶¡¢ÕûºÏÏîĿģ×ÓÓÚÒ»Ì壬£¬£¬£¬£¬£¬£¬¿ÉÍŽáµãÔÆÊý¾Ý£¬£¬£¬£¬£¬£¬£¬»ùÓÚÕæÊµ³¡¾°£¬£¬£¬£¬£¬£¬£¬¿ìËÙÍê³Éõè¾¶¹¤³Ì¡¢Ô°µØ¡¢ÓêË®/ÎÛË®ÅÅ·ÅϵͳÒÔ¼°Ô°µØÍýÏëÉè¼Æ¡£¡£¡£¡£¡£¡£
Plant 3DÈí¼þ¿ÉÒÔÔÙ×°±¸Ä£×Ó½¨É輰ͼֽÉè¼Æ½×¶ÎʵÏÖÕýÏòÉè¼ÆÁ÷³Ì£¬£¬£¬£¬£¬£¬£¬ÅäºÏRevitµÄÍÁ½¨ÕýÏòÉè¼ÆÄ£×Ó£¬£¬£¬£¬£¬£¬£¬µÖ´ï¶àרҵÕûºÏ¡¢ÅöײÆÊÎö¡¢Éè¼ÆÓÅ»¯µÈÊÂÇ飬£¬£¬£¬£¬£¬£¬ÎªÉè¼ÆÊ¦ÌṩÓÅÒìµÄ½â¾ö¼Æ»®¡£¡£¡£¡£¡£¡£


Infraworks¿ÉÊÓ»¯³¡¾°¼Æ»®ÍýÏëÉè¼Æ
BIMÓ¦ÓÃ2£º¸÷רҵÐͬ

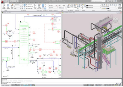
BIMÓ¦ÓÃ3£ºÊ¹ÓÃPlant 3DÈí¼þ¾ÙÐÐÁ÷³Ì¹¤³§Éè¼Æ

BIMÓ¦ÓÃ4£ºÊÂÇéÁ÷¼°Êý¾Ý½»»¥
¼¯³ÉµÄAutoCAD P&IDÓëPlant 3DÇéÐÎ
? AutoCAD P&IDÓëPlant 3D¿É¹²ÏíÒ»¸ö¼òµ¥×ۺϵÄÏîÄ¿£¬£¬£¬£¬£¬£¬£¬ÒÔ´ËÏ໥¾ÙÐÐÁ÷ͨµÄÊý¾Ý½»Á÷¡£¡£¡£¡£¡£¡£
? Åä¹Ü¿ÉУÉóAutoCAD P&IDÊý¾Ý£¬£¬£¬£¬£¬£¬£¬¶ø¹¤ÒÕ¿ÉУÉóAutoCAD Plant 3DÊý¾Ý¡£¡£¡£¡£¡£¡£
? ¶þÕß¹²ÏíͨÓõÄUIºÍÊÂÇéÁ÷£¬£¬£¬£¬£¬£¬£¬ÈçÏîÄ¿ÖÎÀíÆ÷¡¢ÏîÄ¿½¨ÉèÓëÉèÖÃÒÔ¼°Êý¾ÝÖÎÀíÆ÷£¬£¬£¬£¬£¬£¬£¬´Ó¶øÊ¹Óû§Äܹ»Ô½·¢ÇáËɵØÑ§Ï°ºÍʹÓᣡ£¡£¡£¡£¡£
? ½èÖúP&IDÊý¾Ý½¨ÉèÈýά¹ÜµÀºÍ×°±¸Ä£×Ó£¬£¬£¬£¬£¬£¬£¬²¢Æ¾Ö¤Èýάģ×ÓÖеÄÔª¼þÑéÖ¤P&IDÊý¾Ý¡£¡£¡£¡£¡£¡£

BIMÓ¦ÓÃ5£º´ÓµãÔÆ½¨ÉèÄ£×Ó
¿ÉÒÔʹÓõãÔÆÊý¾Ý£¬£¬£¬£¬£¬£¬£¬µ¼Èëµ½Èí¼þÖУ¬£¬£¬£¬£¬£¬£¬´Ó¶ø¾ÙÐÐÄæÏòÄ£×ӵĽ¨É裬£¬£¬£¬£¬£¬£¬´ËÒ»µãÔڽ϶àµÄ¸ÄÀ©½¨¹¤³ÌÖо³£»£»£»£»£»£»£»£»áÓûñµÃ¡£¡£¡£¡£¡£¡£ÌṩÁËÔʼÉè¼ÆÊý¾ÝµÄ¿É×·ËÝÐÔ¡¢¾«×¼ÐÔ¡£¡£¡£¡£¡£¡£

BIMÓ¦ÓÃ6£ºÐͬÉè¼Æ
Óû§¿ÉÒԲο¼NavisworksÄ£×Ó
ʹÓÃÒÑÓÐÏîÄ¿µÄÊý¾Ý
? PDS, PDMS, ÆäËûÃûÌÃ
Ö±½ÓʹÓÃRevitºÍInventorÄ£×Ó
? ͨ¹ýNavisworks Cache (NWC)
? µ± Revit/Inventor Ä£×ÓÐÞ¸ÄʱNWC×Ô¶¯¸üÐÂ
? ÎÞÐèµ¼Èë/µ¼³ö²Ù×÷

BIMÓ¦ÓÃ7£º¿ÉÊÓ»¯¶¯»Õ¹Ê¾»ã±¨

À´°²ÏصڶþÎÛË®´¦Öóͷ£³§
±¾ÏîÄ¿´Ó£ºÔ¤´¦Öóͷ£¹¤¶Î¡¢Éî¶È´¦Öóͷ£¹¤¶Î¡¢Éú»¯´¦Öóͷ£¹¤¶Î¡¢Î²Ë®Åŷż°ÎÛÄà´¦Öóͷ£¹¤¶ÎµÈ£¬£¬£¬£¬£¬£¬£¬Õë¶ÔÎÛË®´¦Öóͷ£Á÷³Ì£¬£¬£¬£¬£¬£¬£¬½ÓÄÉ3DmaxÈí¼þ·ï»ËÁ÷Ì幦Ч£¬£¬£¬£¬£¬£¬£¬¾ÙÐÐϸÄ嶯»µÄÖÆ×÷¡£¡£¡£¡£¡£¡£







3¡¢ÔËά½â¾ö¼Æ»®Ò»ÀÀ

z6com¹ÙÍøµÇ¼Èë¿ÚϵÁвúÆ·Ò»ÀÀ
